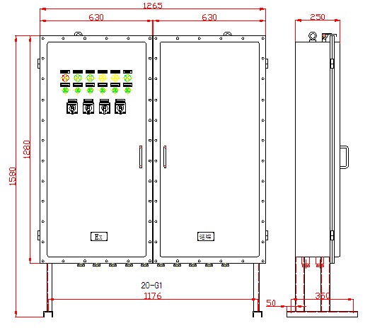
防爆配電箱(不銹鋼)
一、適用范圍 1、爆炸性氣體或粉塵環境的1區、2區。 2、IIA、IIB、IIC級,溫度組別T1-T4環境均可。 3、戶內、戶外,鋼管或電纜布線布可。 二、產品特點 1、本樣圖產品為隔爆型結構,采
訂購熱線:156-3717-0993產品詳情
一、適用范圍
1、爆炸性氣體或粉塵環境的1區、2區。
2、IIA、IIB、IIC級,溫度組別T1-T4環境均可。
3、戶內、戶外,鋼管或電纜布線布可。
二、產品特點
1、本樣圖產品為隔爆型結構,采用防爆填料函隔離后直接引入,節省了殼體空間。
2、內裝斷路器、交流接觸器、熱保護繼電氣、PLC模塊、變頻器等工業控制元件,面板為防爆信號燈及電流
電壓表指示,防爆按鈕、防爆開關操作。
3、本產品全部推出新型優化的設計方案及操作機構,結構緊湊合理、通用性強、操作靈活方便、手感操作好。
4、具體要求可根據用戶要求訂制,訂貨時請提供詳細電氣原理圖、元件使用品牌及結構要求。

上一篇:BXM(D)-F系列防爆配電箱
下一篇:BSG防爆配電柜(IIC級)





